19 Westaway Crescent
Andergrove QLD 4740

50% let – Estimated completion February 2023. 

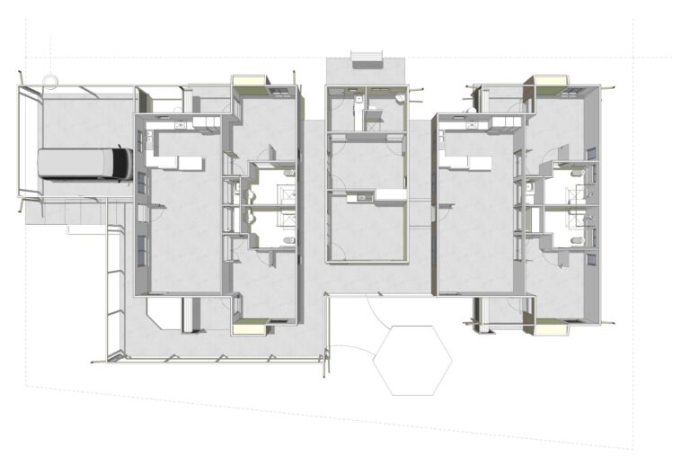
This Four bedroom SDA home with On site over night assistance residence offers a great opportunity for residents to enjoy an independent living experience with an emphasis on comfort and privacy. 

The home is split into two dual living villa’s separated by the OOA. Each bedroom has an ensuite and private patio and is fitted with ceiling hoists whilst each villa has a large combined living, Dining and kitchen area. In addition a large outdoor gazebo can be enjoyed by all residents.

5 bed

.

3 bath

.

2 parking spaces

19 Westaway Crescent
Andergrove QLD 4740

5 bed

.

3 bath

.

2 parking spaces

.

50% let – slab laid – available December. 

This Four bedroom SDA home with On site over night assistance residence offers a great opportunity for residents to enjoy an independent living experience with an emphasis on comfort and privacy. 

The home is split into two dual living villa’s separated by the OOA. Each bedroom has an ensuite and private patio and is fitted with ceiling hoists whilst each villa has a large combined living, Dining and kitchen area. In addition a large outdoor gazebo can be enjoyed by all residents.

50% let – slab laid – available December. 

This Four bedroom SDA home with On site over night assistance residence offers a great opportunity for residents to enjoy an independent living experience with an emphasis on comfort and privacy. 

The home is split into two dual living villa’s separated by the OOA. Each bedroom has an ensuite and private patio and is fitted with ceiling hoists whilst each villa has a large combined living, Dining and kitchen area. In addition a large outdoor gazebo can be enjoyed by all residents.

Property Features

The Building

Single storey

Access

Ramp access

Wide doorframes

Wide pathways

Environment

Air conditioning

Heating

Outside

Raised vegetable garden beds

Personal clothesline 

Covered walkways between villas

Gazebo

Shared entertainment area

Undercover access from parking to property

One Bedroom Villa

Specification

Large bedroom c/w  ceiling rails

Built-in robe

Private patio and garden area 

Ensuite bathroom

Private entry

Private living space 

Private kitchen with adjustable height benchtop

Laundry in kitchen

Registered SDA

Yes

SDA Category

High Physical Support

Stay Duration

Permanent

Medium Term 

Short Term 

What's Nearby

Local Terrain

Approximately 4 minutes drive or 20 minute wheelchair ride to Andergrove Central shopping centre.
Less than 400m to Andergrove store on Bedford road.

Shopping

Only 10 minutes drive from Mackay CBD, central shopping precinct, Mater and Mackay Base hospitals.